RÉSIDENCE MOKA -
Actuellement en construction à Luxembourg, zone Kirchberg.
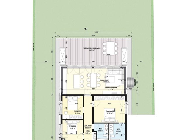
ETAGE 00 - APP. 01
Appartement idéalement situé, au 109 Rue des Muguets à Luxembourg (quartier Neudorf-Weimershof).
L'appartement de 96,51m2 habitables se situe au rez-de-chaussée de cette résidence.
Il se compose de deux chambres de 10 m2 ainsi que d'une suite parentale de 17 m2 avec sa propre salle de bain attenante de 6,86 m2.
L'appartement se compose également d'une seconde salle de douche (5,60 m2) et d'une belle pièce de vie de 33,63 m2 comprenant un espace salon, un espace S.à.M et une cuisine ouverte.
Cette belle pièce de vie est entièrement ouverte sur l'extérieur grâce à ses deux grandes baies vitrées, donnant accès à une terrasse de 38,72 m2 et à un beau jardin privatif de 308 m2.
Prestations haut de ...
Lire la suite [+]
RÉSIDENCE MOKA -
Actuellement en construction à Luxembourg, zone Kirchberg.
ETAGE 00 - APP. 01
Appartement idéalement situé, au 109 Rue des Muguets à Luxembourg (quartier Neudorf-Weimershof).
L'appartement de 96,51m2 habitables se situe au rez-de-chaussée de cette résidence.
Il se compose de deux chambres de 10 m2 ainsi que d'une suite parentale de 17 m2 avec sa propre salle de bain attenante de 6,86 m2.
L'appartement se compose également d'une seconde salle de douche (5,60 m2) et d'une belle pièce de vie de 33,63 m2 comprenant un espace salon, un espace S.à.M et une cuisine ouverte.
Cette belle pièce de vie est entièrement ouverte sur l'extérieur grâce à ses deux grandes baies vitrées, donnant accès à une terrasse de 38,72 m2 et à un beau jardin privatif de 308 m2.
Prestations haut de gamme :
- Triple vitrage isolant
- Revêtements des sols choisis par le client à hauteur de 65€ HT le m2
- Châssis fenêtre Alu
- Système de ventilation à double flux
- Chauffage au sol
Parking disponible en souterrain en supplément.
Les finitions et équipement peuvent être modifiés sur validation de la société de promotion.
L'acquéreur peut, après avis du promoteur et avec son accord, apporter de légères modifications aux plans de son appartement.
Prix TVA mixte à 3%.